本文
施設案内
施設案内
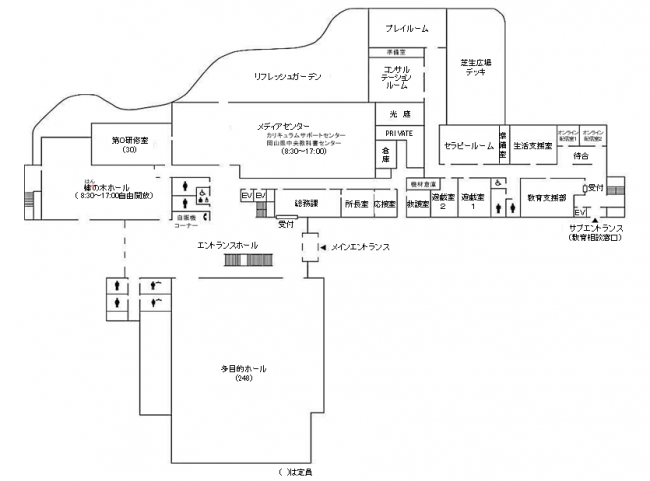
■1階

■2階

■3階

■4階

■駐車場

施設の利用について
施設利用を希望する場合は、必ず事前に電話で御連絡ください。
<連絡先>岡山県総合教育センター総務課 0866-56-9101
教育財産使用許可申請書は、利用日の2週間前までに御提出ください。
教育財産使用許可申請書(総合教育センター)Excel形式 [Excelファイル/32KB]
教育財産使用許可申請書(総合教育センター)PDF形式 [PDFファイル/199KB]
多目的ホール等を使用する場合は、各自、スリッパなどの上履きをご持参ください。
(各主催者から参加者への周知もお願いします。)
【対象施設】多目的ホール、食物実習室、被服・家庭看護実習室
<留意事項>
・利用希望日に岡山県総合教育センターの研修事業等での使用がないこと
・使用許可及び使用料については、岡山県教育財産管理規則(昭和42年7月1日、岡山県教育委員会規則第11号)及び岡山県行政財産使用料徴収条例(昭和39年3月27日、岡山県条例第20号)の定めるところによること
